
@宜宾人,你知道装修中实现“所见即所得”是一种怎样的体验吗?
你曾有过幻灭的体验吗?对憧憬的东西抱有极大的期待,但却扎扎实实的体验了一把,想象是美好的,现实是让人抓狂的。
你想象中的
你实际上得到的
理想与现实之间的鸿沟,有时候深的简直催人泪下,但其实只是在于一个选择,不信?那你来华宁装饰看看!亲自体验下眼见为实的愉悦感 !
华宁装修案例实拍
所见即所得,自家装产业逐步形成以来,家装企业、工作室、"游击队"鱼龙混杂,你方唱罢我登场!!!!!!!
宜宾华宁装饰有自己的健康木作配套加工厂
家装市场各种不实承诺、虚假宣传和“低价陷阱”铺天盖地、倒闭、跑路的店更是屡见不鲜!!!!

图为华宁装饰美好和居1栋3套实装样板房
23年有口皆碑,1997年华宁装饰创建于宜宾,23年深耕本土,累计服务客户数量超10000户,名号家喻户晓,信誉有口皆碑。
华宁装饰一站式家装订制平台接待大厅
当众多宜宾家装客户,因为当年选择的家装企业早已消声匿迹,而无法得到售后服务而苦恼之时,华宁装饰却不间断地 为客户提供优质售后维修服务!
华宁装饰坚持了十三年的315董事长回访
这既是华宁的责任担当,也是华宁客户的"放心”福音,更是完美诠释了家装售后保证的重要性!!!!!!!
疫情期间也未间断,改为线上回访
【装修案例】
【小区名称】美好和居
【房屋面积】135㎡
【设计风格】现代风格
【风格定位】
本案定位为现代风格,客餐厅及主卧采用全墙板处理,进入流行的轻奢元素,金属质感的运用使视觉效果简约时尚,客餐厅全平顶的设计又将极简表现到了极致,极简但又不缺乏精心的小点缀,将整体设计的重心,转移到居住者在空间的体验感和舒适度的最大化。
实际装修效果
【方案改造】
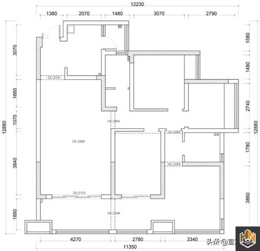
此户型总体方正,房间尺寸大小合适,四个房间也能满足不同家庭人口的居住需求,本方案主要针对房屋局部进行了优化设计,原入户鞋柜位置欠缺,厨房橱柜正对摆放利用率较低,餐厅及生活阳台较小,不能满足一大家人的实用需求。
原始户型图
改造后户型图
针对这些问题,将厨房门调换位置,将餐厅墙向里移,进门右手边起薄墙,将鞋柜嵌进去,餐厅放到与沙发一条线上也起到遮挡作用,避免了进门看沙发的不适,厨房将生活阳台融入其中,L型的大橱柜台面更加实用,增大储物功能。
装修改造中
由于三楼此户型下方为商业铺面所以增设了生活阳台用作临时晾衣服使用,主要晾晒区仍然放在了景观阳台拐角处,客厅看过去也不影响美观,四个房间保留了三个卧室,将主卧做成套间形式,兼备书房和衣帽间的功能,增大了房屋的储藏功能,增加主人的使用感体验。
实际装修效果
家装是一个复杂且庞大的系统流程,远远不是一张设计图所能打动和解决,更重要的是,达成交付前后的“所见即所得
华宁装修案例实拍
悄悄说一句,小编手里还有,一大波关于华宁装饰的惊喜,慢慢给大家看……